257 000€
Appt. au 0-RDC
T3
63 m²
-
Compiègne (60200)
4ème trimestre 2027
01 81 80 39 10
Présentation du programme "LES JARDINS DE JEZZINE"
DEVENEZ PROPRIÉTAIRE DANS LE QUARTIER PRISÉ DES SABLONS À COMPIÈGNE : VOTRE MAISON « PRÊTE-À-VIVRE » À PARTIR DE 285 000 € OU VOTRE VILLA-JARDIN 3 PIECES À PARTIR DE 1049,35€/MOIS
Grâce au Prêt à Taux Zéro en zone B1, augmentez votre capacité d’achat en bénéficiant d’un emprunt à taux 0 % pouvant atteindre jusqu’à 162 000 € soit maximum 50 % de l’achat d’un appartement ou jusqu’à 97 200 € soit maximum 30 % de l’achat d’une maison individuelle.
Votre maison 4 pièces à 1405,74 € / mois
Votre Villa-Jardin 3 pièces à 1049,35 € / mois
À une heure seulement de Paris en train et à proximité immédiate de l’A1, Compiègne séduit par son cadre de vie équilibré entre ville et nature. Bordée par la forêt domaniale et les bords de l’Oise, la ville offre un environnement paisible sans renoncer à la vitalité urbaine : patrimoine historique, commerces variés, lycée très réputé Jean Paul II, activités sportives et culturelles, et un service de bus gratuit facilitent le quotidien des actifs et des familles.
UNE OFFRE EXCLUSIVE DE MAISONS OU VILLA-JARDINS AU CŒUR DES SABLONS
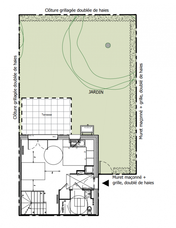
C’est dans le nouveau quartier du Camp des Sablons, offrant une transition douce entre la ville et la forêt de Compiègne, que se niche ce nouveau programme. « LES JARDINS DE JEZZINE » Il proposent 12 Villas-Jardins en duplex de 3 pièces (63 m²), idéales pour un premier achat, ainsi que 20 maisons « prêtes-à-vivre » de 4 et 5 pièces (de 82 m2 à 114 m²) pensées pour répondre aux besoins des familles en quête d’espace et de confort.
Depuis plus de 50 ans, European Homes réinvente l’habitat avec son concept unique des VILLAS-JARDINS rendant possible le rêve d’une maison, à partir de 63 m2 avec une entrée individuelle et agrémentée de son jardin privatif engazonné. Accessibles à tous, nos habitations sont conçues pour répondre à toutes les préférences de vie.
Tous les logements disposent d’un jardin privatif engazonné et clôturé, véritable prolongement de l’espace de vie. Chaque maison bénéficie également d’un garage et d’une place de stationnement. Vivre au cœur du quartier des Sablons c’est bénéficier d’un lieu exclusif, calme et connecté.
ENTRE FORÊT ET VILLE, VIVEZ PROCHE DE TOUT
Au quotidien, tout est accessible en moins de 20 minutes à pied* ou via la ligne de bus : écoles maternelles, primaires, collège et lycées – dont le réputé lycée privé Jean Paul II. L’Université de Technologie de Compiègne (UTC) est également toute proche, à seulement 7 minutes à vélo*. Les commerces de proximité sont n
Autres logements T3 du programme "LES JARDINS DE JEZZINE"
| Disponibilité | Prix | No | Genre | Pièces | Surface | Étage | Disponibilité | Prix | ||
|---|---|---|---|---|---|---|---|---|---|---|
| Voir | Disponible | 241 000€ | A001 | Appt. | T3 | 63m2 | 0-RDC | Disponible | 241 000€ | Voir |
| Voir | Optionné | 263 000€ | A002 | Appt. | T3 | 63m2 | 0-RDC | Optionné Mais pas encore vendu 😉 | 263 000€ | Voir |
| Voir | Disponible | 262 000€ | A003 | Appt. | T3 | 63m2 | 0-RDC | Disponible | 262 000€ | Voir |
| Voir | Disponible | 249 000€ | A004 | Appt. | T3 | 63m2 | 0-RDC | Disponible | 249 000€ | Voir |
| Voir | Disponible | 249 000€ | B001 | Appt. | T3 | 63m2 | 0-RDC | Disponible | 249 000€ | Voir |
| Voir | Disponible | 262 000€ | B002 | Appt. | T3 | 63m2 | 0-RDC | Disponible | 262 000€ | Voir |
| Voir | Disponible | 248 000€ | B004 | Appt. | T3 | 63m2 | 0-RDC | Disponible | 248 000€ | Voir |

