Prix
304 800€
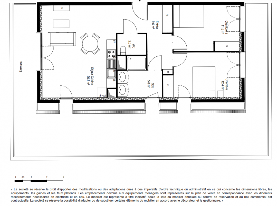
Type
Appt. au 3ème
Pièces
T3
Surface
68.1 m²
Exposition
-
Ville
Soissons (02200)
Livraison
3ème trimestre 2026
Informations
01 81 80 39 10

Présentation du programme "CLOS VITA"

La résidence seniors Clos Vita, s’intègre parfaitement dans son environnement par son architecture moderne et élégante. Composée de 115 appartements du T1 au T3, elle propose des espaces de vie chaleureux, notamment une belle terrasse commune en rooftop. À l’extérieur, des espaces verts aménagés permettent de profiter de chemins de promenade, d’un jardin potager partagé ou encore d’un terrain de pétanque, le tout dans un esprit de partage et de convivialité. À l’intérieur, plus de 200 m² d’espaces communsfavorisent le lien social. Les résidents ont ainsi à leur disposition un salon, une cuisine collaborative, une salle de fitness, un salon de coiffure et de beauté et une salle de télémédecine.

Autres logements T3 du programme "CLOS VITA"

Pas de logements disponibles
DO NOT CLICK