198 500€
Appt. au 3ème
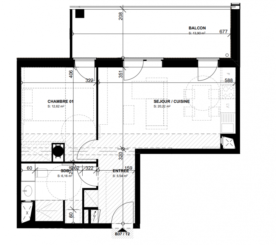
T2
44.54 m²
Sud
Mulhouse (68100)
1er trimestre 2027
01 81 80 39 10
Présentation du programme "New Mil"
Vous souhaitez y habiter ? Vérifiez votre éligibilité au PTZ avec nos équipes !Habitez ou investissez à Mulhouse, au cœur d'une ville connectée et verdoyanteSituée à proximité de la frontière suisse et allemande, Mulhouse est un carrefour stratégique en Europe. Mulhouse est un pôle industriel et technologique majeur en Alsace, avec une économie en pleine croissance.Ville verte, dotée de nombreux parcs et espaces naturels, ainsi que d'une riche offre culturelle (La Filature, médiathèques, cinémas, etc.). Un cadre de vie idéal alliant nature et dynamisme économiqueUne ville dynamique, qui attire étudiants, familles et actifs grâce à son cadre de vie et à ses opportunités professionnelles.La résidence est à quelques pas du parc Nouveau Bassin, une véritable oasis de fraîcheur avec ses fontaines et ses sculptures. Commodités et transports À seulement 10 minutes à pied du centre-ville de Mulhouse.Pharmacies, supermarchés, boulangeries et restaurants à proximité immédiate.Crèches, écoles maternelles, primaires, collèges, lycées et universités accessibles facilement.L'arrêt de bus se trouve au pied de la résidence et le tram est accessible en 5 minutes à pied. Focus Prestations/RésidenceTous les appartements disposent d'un balcon ou d'une terrasse.Chaque logement dispose d'une place de parking en sous-sol. Le + du programme Une localisation exceptionnelle à deux pas du Parc Nouveau Bassin, véritable oasis de fraîcheur en plein cœur urbain.
Autres logements T2 du programme "New Mil"
| Disponibilité | Prix | No | Genre | Pièces | Surface | Étage | Disponibilité | Prix | ||
|---|---|---|---|---|---|---|---|---|---|---|
| Voir | Disponible | 179 500€ | B34 | Appt. | T2 | 43.84m2 | 3ème | Disponible | 179 500€ | Voir |
| Voir | Disponible | 186 500€ | B26 | Appt. | T2 | 42.36m2 | 2ème | Disponible | 186 500€ | Voir |
| Voir | Disponible | 189 500€ | B54 | Appt. | T2 | 43.83m2 | 5ème | Disponible | 189 500€ | Voir |
| Voir | Disponible | 197 500€ | B46 | Appt. | T2 | 42.63m2 | 4ème | Disponible | 197 500€ | Voir |
| Voir | Disponible | 202 500€ | B42 | Appt. | T2 | 47.37m2 | 4ème | Disponible | 202 500€ | Voir |