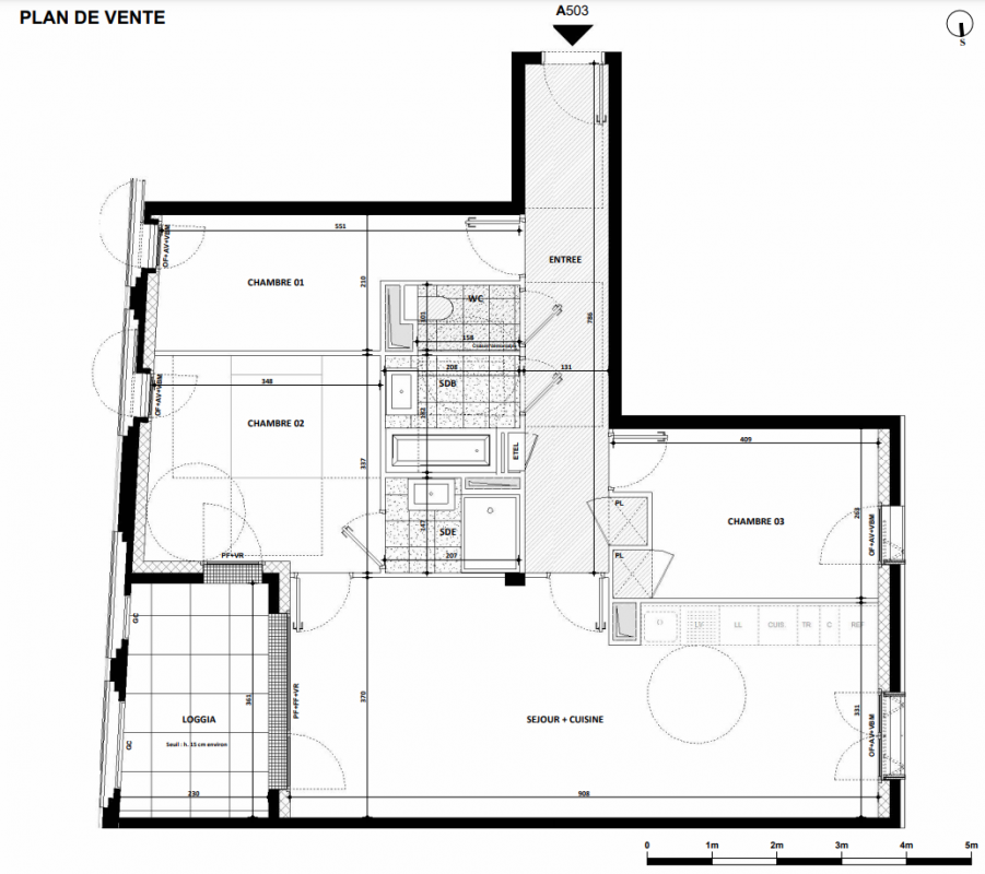
380 000€
Appt. au 5ème
T4
81.59 m²
-
Orléans (45000)
1er trimestre 2028
01 81 80 39 10
Présentation du programme "HÉRITAGE"
[ ORLÉANS | CENTRE-VILLE HISTORIQUE ] – Située à deux pas de la Loire, la résidence HÉRITAGE bénéficie d’un emplacement urbain et patrimonial remarquable, au cœur d’un environnement chargé d’histoire.
Venez nous rencontrer au sein de notre ESPACE DE VENTE, rue Porte Madeleine (face au n°8) à ORLÉANS, les mercredi et vendredi de 10h00 à 12h00 et de 14h00 à 18h00. Autres jours sur rendez-vous.
Du studio au 5 pièces, les appartements de standing proposent des prestations haut de gamme, en parfaite cohérence avec la qualité architecturale de la résidence.
Lumineux et spacieux, les logements bénéficient d’une belle lumière naturelle. Dès les 2 pièces, certains appartements profitent d’une double, voire triple orientation, gage de confort et de luminosité.
Pour un bien-être optimal, de généreux espaces extérieurs privatifs prolongent chaque logement. Aux derniers étages, de vastes terrasses offrent des vues dégagées sur la ville et les bâtiments classés.
La résidence HÉRITAGE s’inscrit dans un projet paysager qualitatif, déployé du cœur d’îlot jusqu’aux toitures, participant pleinement à la qualité du cadre de vie.
Selon votre situation, ce projet peut être éligible au Prêt à Taux Zéro (PTZ).
Le dispositif LLI est également possible pour un projet d’investissement.
*Voir les conditions sur la page Mentions légales de notre site Vianova.fr.
Contactez nos conseillers Lamotte à ORLÉANS ou rendez-vous sur LAMOTTE.FR pour en savoir plus.
Autres logements T4 du programme "HÉRITAGE"
| Disponibilité | Prix | No | Genre | Pièces | Surface | Étage | Disponibilité | Prix | ||
|---|---|---|---|---|---|---|---|---|---|---|
| Voir | Disponible | 374 000€ | A303 | Appt. | T4 | 81.59m2 | 3ème | Disponible | 374 000€ | Voir |
| Voir | Disponible | 377 000€ | A403 | Appt. | T4 | 81.59m2 | 4ème | Disponible | 377 000€ | Voir |
| Voir | Optionné | 380 000€ | A501 | Appt. | T4 | 87.16m2 | 5ème | Optionné Mais pas encore vendu 😉 | 380 000€ | Voir |
| Voir | Optionné | 384 000€ | B201 | Appt. | T4 | 88.01m2 | 2ème | Optionné Mais pas encore vendu 😉 | 384 000€ | Voir |
| Voir | Optionné | 390 000€ | B301 | Appt. | T4 | 88.01m2 | 3ème | Optionné Mais pas encore vendu 😉 | 390 000€ | Voir |
| Voir | Disponible | 374 000€ | B302 | Appt. | T4 | 82.62m2 | 3ème | Disponible | 374 000€ | Voir |
| Voir | Disponible | 395 000€ | B401 | Appt. | T4 | 88.37m2 | 4ème | Disponible | 395 000€ | Voir |
| Voir | Disponible | 377 000€ | B402 | Appt. | T4 | 82.66m2 | 4ème | Disponible | 377 000€ | Voir |
| Voir | Optionné | 435 000€ | B501 | Appt. | T4 | 88.93m2 | 5ème | Optionné Mais pas encore vendu 😉 | 435 000€ | Voir |
| Voir | Optionné | 475 000€ | B502 | Appt. | T4 | 91.9m2 Le bon plan | 5ème | Optionné Mais pas encore vendu 😉 | 475 000€ | Voir |
| Voir | Optionné | 394 000€ | B503 | Appt. | T4 | 84.38m2 | 5ème | Optionné Mais pas encore vendu 😉 | 394 000€ | Voir |
| Voir | Optionné | 370 000€ | C203 | Appt. | T4 | 84.11m2 | 2ème | Optionné Mais pas encore vendu 😉 | 370 000€ | Voir |
| Voir | Optionné | 377 000€ | C403 | Appt. | T4 | 84.11m2 | 4ème | Optionné Mais pas encore vendu 😉 | 377 000€ | Voir |
| Voir | Disponible | 390 000€ | C503 | Appt. | T4 | 78.09m2 | 5ème | Disponible | 390 000€ | Voir |