75 250€
138 460€
- €
Type
Appt. au 1er
Pièces
Studio
Surface
30.1 m²
Exposition
-
Ville
Tours (37000)
Livraison
4ème trimestre 2027
Informations
01 81 80 39 10

Présentation du programme "L'Hôtel LALOUX"

Ville natale d'Honoré de Balzac, Tours est la cité des cathédrales dont celle de Saint-Gatien, bâtie entre le XIIIe et XVIe siècle sur les vestiges de la cité gallo-romaine.

Au cœur du vieux Tours, la place Plumereau est souvent citée en exemple pour la magnifique architecture offerte par ses maisons à pans de bois. La préservation de cet ensemble, nous la devons à un plan de sauvegarde initié en 1973, s'appuyant sur la loi Malraux (1962) visant à protéger et valoriser le patrimoine historique.

"L'Hôtel LALOUX se trouve sur la rue éponyme, à 5mn à pied de la gare, de l'Hôtel de ville, du palais des congrès et de toutes les commodités. "

Le quartier du centre-ville de Tours, autour de la place de l'Hôtel de Ville, est le cœur vibrant de la ville. La majestueuse place Jean Jaurès, avec l'imposant Hôtel de Ville en architecture néo-Renaissance, attire immédiatement l'attention.

Les cafés, restaurants et terrasses animent la place, les rues environnantes sont bordées de commerces variés, idéales pour le shopping et la découverte gastronomique. Les espaces verts, comme le jardin de la Préfecture, apportent une touche de tranquillité. Ce quartier mêle harmonieusement histoire et modernité, créant une atmosphère conviviale et dynamique.

Les 3 parkings publics du centre ville et de la gare, se trouvent à 5mn de l'immeuble, tout comme les Galeries Lafayette et le tramway.

A moins de 50m, se trouve le très réputé Lycée Descartes qui propose des formations supérieures et des préparations aux grandes écoles..

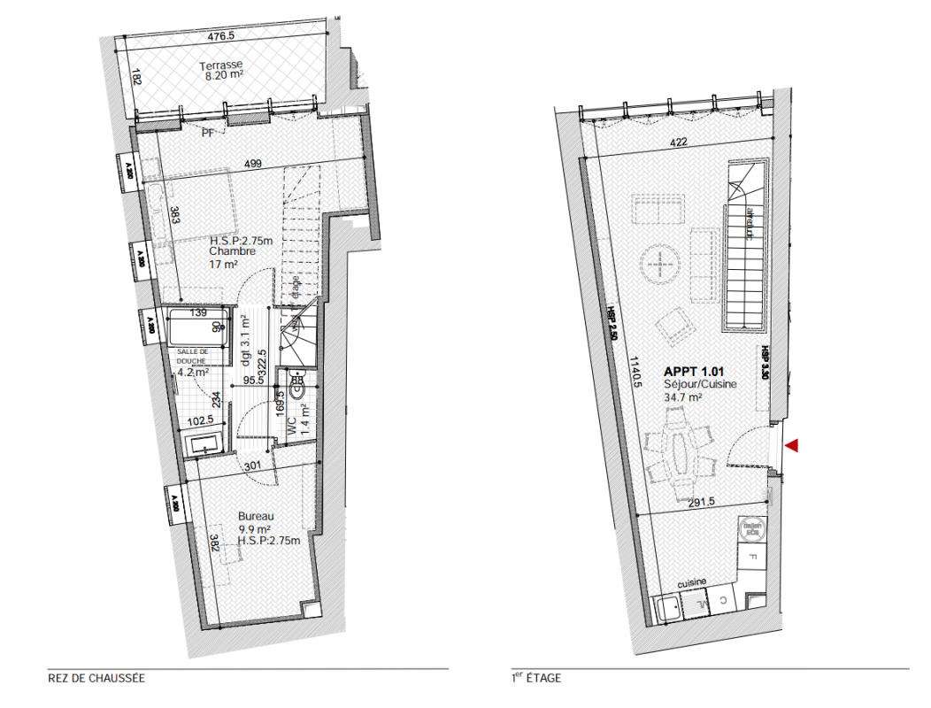
Le bâtiment sera aménagé en 8 logements du T1 au T3 Duplex avec des surfaces de 16.80m² à 81.40m² du RDC au R+3 et deux lots avec terrasse. Les expositions Est et Ouest de l'immeuble offrent une belle luminosité aux appartements, pour certains "traversant".

Une cave spacieuse en sous sol est proposée à la vente pour le T3 Duplex.

Le programme repose sur la mise en valeur et le respect d'un authentique patrimoine architectural. La façade principale donne sur la rue Victor Laloux.

Les fenêtres sont munies de vantaux bois et de vitrage clair avec imposte, qui vient agrandir la surface vitrée et offre un apport de lumière généreux.

Au total, 8 logements seront réhabilités avec soin et respect du patrimoine actuel, tout en alliant confort et charme intemporel sur un emplacement très recherché.

Pour visualiser la vidéo du programme, cliquez juste ici : Vidéo

Autres logements Studio du programme "L'Hôtel LALOUX"

Disponibilité Prix Genre Pièces Surface Étage
Voir
Disponible
126 000€ Appt. Studio 16.8m2 1er
DO NOT CLICK