Prix
271 000€  (TVA 20%)
248 417€  (TVA 10%)
Type
Appt. au 3ème
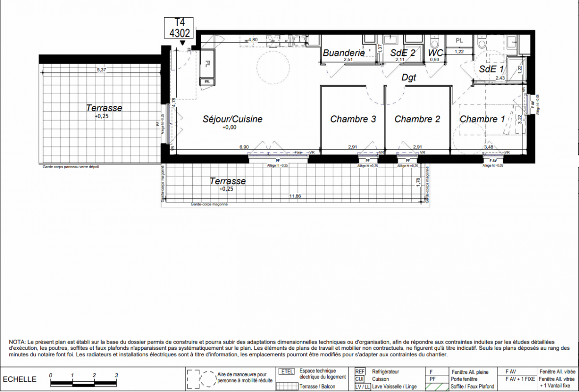
Pièces
T4
Surface
85 m²
Exposition
Ouest
Ville
Chartres (28000)
Livraison
1er trimestre 2027
Informations
01 81 80 39 10

Présentation du programme "OXALIS"

Investir à Chartres dans un projet immobilier neuf Au sein du quartier Fulbert, regroupant écoles et commerces, la résidence OXALIS propose des appartements neufs à vendre du 2 au 4 pièces avec parking en sous-sol. La résidence Nexity en co-promotion avec Chartres Développement est idéalement située à moins de 10 min de l'hypercentre et à 10 min de l'autoroute A10. Chaque logement possède un extérieur : jardin, balcon ou belle terrasse sur le toit pour les plus grands appartements aux abords de la mini forêt. La dernière norme de construction RE 2020 seuil 2025 garantit un confort optimal et des économies d'énergie. Chartres, métropole dynamique et novatrice se situe au coeur de la Cosmetic Valley. Territoire idéal pour investir dans l'immobilier. Découvrez nos 'pack mobilier' pour faire du LMNP clé en main. Ce projet est éligible au nouveau prêt à taux 0% pour votre résidence principale. Contactez-nous vite pour l'étude de votre projet ! Pour toutes informations complémentaires, prenez contact avec nous !

Autres logements T4 du programme "OXALIS"

Pas de logements disponibles
DO NOT CLICK