192 000€
Appt. au 2ème
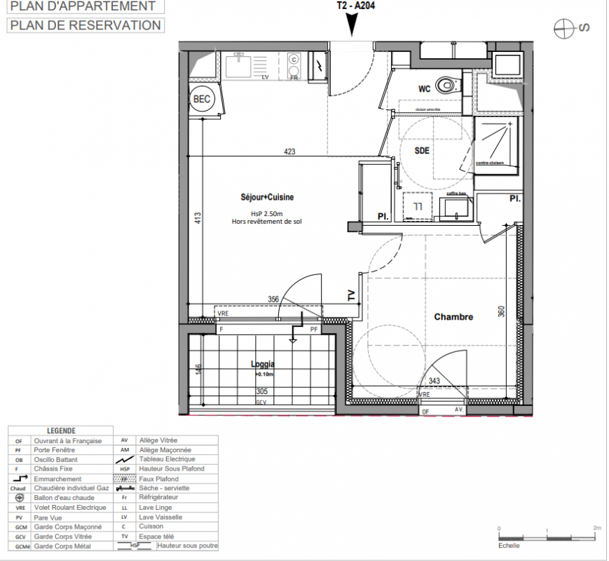
T2
39.88 m²
-
Thorigné-Fouillard (35235)
4ème trimestre 2027
01 81 80 39 10
Présentation du programme "CEPIA"
[ - TRAVAUX EN COURS - ] DEVENEZ PROPRIÉTAIRE GRÂCE À IMMOSTART* et au PTZ 2025** !
Située à Thorigné-Fouillard, commune dynamique et recherchée de la première couronne rennaise, la résidence CÉPIA vous offre un cadre de vie rare : environnement verdoyant, quartier résidentiel calme, à proximité immédiate du centre-bourg et de toutes les commodités du quotidien (commerces, écoles, équipements publics…).
Parfaitement connectée à Rennes et sa métropole, grâce à des accès rapides à la rocade, la ligne B du métro et des transports en commun fluides, CÉPIA allie qualité de vie au vert et mobilité facilitée.
Découvrez nos appartements neufs du 2 au 4 pièces, baignés de lumière grâce à de belles expositions, tous prolongés d’un espace extérieur (balcon, terrasse ou jardin privatif) et ouverts sur un cœur d’îlot végétalisé. Confort, sécurité et prestations soignées font de chaque logement un lieu de vie agréable et durable.
Idéal pour une première acquisition ou un projet de vie entre nature et ville, CÉPIA vous permet de bénéficier du nouveau Prêt à Taux Zéro 2025, dans une commune à taille humaine tournée vers l’avenir.
INVESTIR OU DEVENIR PROPRIETAIRE : PROFITEZ DES AVANTAGES !
Ce programme immobilier est éligible à la loi “Jeanbrun” et cumulable avec le dispositif LLI (achat en TVA à 10 % et crédit d’impôt de taxe foncière). Maximisez votre investissement avec une étude fiscale personnalisée. Les conseillers Lamotte vous accompagnent dans la création et l’optimisation de votre patrimoine.
Envie de devenir propriétaire de votre résidence principale, bénéficier de toutes les garanties du neuf et du Prêt à Taux Zéro (PTZ) ? Optimisez votre financement et votre capacité d’emprunt en prenant rendez-vous.
Choisir le neuf, c’est profiter de frais de notaire réduits. Un avantage supplémentaire dans le cadre d'une acquisition en résidence principale comme pour un investissement patrimonial.
*voir les conditions sur la page mentions légales de notre site lamotte.fr
** Valable pour les offres de Prêt à Taux Zéro (PTZ) émises entre 1er avril 2025 et le 31 décembre 2027, pour l’acquisition d'une résidence principale neuve en tant que primo-accédant. Le PTZ est accessible dans toutes les communes du territoire français, quelle que soit leur zone A, B ou C, pour les logements collectifs et individuels neufs, dans les conditions d’application prévues par la loi de finances pour 2025 et selon les modalités définies par le décret n°2025-299 du 29/03/2025. Sous réser
Autres logements T2 du programme "CEPIA"
| Disponibilité | Prix | No | Genre | Pièces | Surface | Étage | Disponibilité | Prix | ||
|---|---|---|---|---|---|---|---|---|---|---|
| Voir | Disponible | 193 500€ | A101 | Appt. | T2 | 48.07m2 | 1er | Disponible | 193 500€ | Voir |
| Voir | Disponible | 183 500€ | A107 | Appt. | T2 | 40.22m2 | 1er | Disponible | 183 500€ | Voir |
| Voir | Disponible | 198 500€ | A201 | Appt. | T2 | 48.08m2 | 2ème | Disponible | 198 500€ | Voir |
| Voir | Disponible | 188 500€ | A206 | Appt. | T2 | 42.84m2 | 2ème | Disponible | 188 500€ | Voir |
| Voir | Disponible | 188 500€ | A207 | Appt. | T2 | 40.22m2 | 2ème | Disponible | 188 500€ | Voir |
| Voir | Disponible | 205 000€ | A301 | Appt. | T2 | 48.08m2 | 3ème | Disponible | 205 000€ | Voir |
| Voir | Disponible | 197 000€ | A304 | Appt. | T2 | 39.88m2 | 3ème | Disponible | 197 000€ | Voir |
| Voir | Disponible | 193 500€ | A306 | Appt. | T2 | 40.22m2 | 3ème | Disponible | 193 500€ | Voir |
| Voir | Disponible | 195 500€ | B107 | Appt. | T2 | 42.49m2 | 1er | Disponible | 195 500€ | Voir |
| Voir | Optionné | 173 500€ | B203 | Appt. | T2 | 45.13m2 Le bon plan | 2ème | Optionné Mais pas encore vendu 😉 | 173 500€ | Voir |
| Voir | Disponible | 173 500€ | B204 | Appt. | T2 | 43.24m2 | 2ème | Disponible | 173 500€ | Voir |
| Voir | Disponible | 180 500€ | B305 | Appt. | T2 | 43.1m2 | 3ème | Disponible | 180 500€ | Voir |
| Voir | Disponible | 205 500€ | B307 | Appt. | T2 | 42.49m2 | 3ème | Disponible | 205 500€ | Voir |
| Voir | Optionné | 213 500€ | B401 | Appt. | T2 | 41.62m2 | 4ème | Optionné Mais pas encore vendu 😉 | 213 500€ | Voir |