252 500€
Appt. au 1er
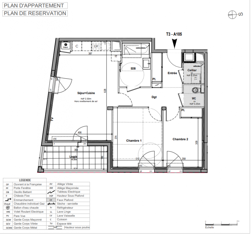
T3
61.92 m²
-
Thorigné-Fouillard (35235)
4ème trimestre 2027
01 81 80 39 10
Présentation du programme "CEPIA"
[ - TRAVAUX EN COURS - ] DEVENEZ PROPRIÉTAIRE GRÂCE À IMMOSTART* et au PTZ 2025** !
Située à Thorigné-Fouillard, commune dynamique et recherchée de la première couronne rennaise, la résidence CÉPIA vous offre un cadre de vie rare : environnement verdoyant, quartier résidentiel calme, à proximité immédiate du centre-bourg et de toutes les commodités du quotidien (commerces, écoles, équipements publics…).
Parfaitement connectée à Rennes et sa métropole, grâce à des accès rapides à la rocade, la ligne B du métro et des transports en commun fluides, CÉPIA allie qualité de vie au vert et mobilité facilitée.
Découvrez nos appartements neufs du 2 au 4 pièces, baignés de lumière grâce à de belles expositions, tous prolongés d’un espace extérieur (balcon, terrasse ou jardin privatif) et ouverts sur un cœur d’îlot végétalisé. Confort, sécurité et prestations soignées font de chaque logement un lieu de vie agréable et durable.
Idéal pour une première acquisition ou un projet de vie entre nature et ville, CÉPIA vous permet de bénéficier du nouveau Prêt à Taux Zéro 2025, dans une commune à taille humaine tournée vers l’avenir.
INVESTIR OU DEVENIR PROPRIETAIRE : PROFITEZ DES AVANTAGES !
Ce programme immobilier est éligible à la loi “Jeanbrun” et cumulable avec le dispositif LLI (achat en TVA à 10 % et crédit d’impôt de taxe foncière). Maximisez votre investissement avec une étude fiscale personnalisée. Les conseillers Lamotte vous accompagnent dans la création et l’optimisation de votre patrimoine.
Envie de devenir propriétaire de votre résidence principale, bénéficier de toutes les garanties du neuf et du Prêt à Taux Zéro (PTZ) ? Optimisez votre financement et votre capacité d’emprunt en prenant rendez-vous.
Choisir le neuf, c’est profiter de frais de notaire réduits. Un avantage supplémentaire dans le cadre d'une acquisition en résidence principale comme pour un investissement patrimonial.
*voir les conditions sur la page mentions légales de notre site lamotte.fr
** Valable pour les offres de Prêt à Taux Zéro (PTZ) émises entre 1er avril 2025 et le 31 décembre 2027, pour l’acquisition d'une résidence principale neuve en tant que primo-accédant. Le PTZ est accessible dans toutes les communes du territoire français, quelle que soit leur zone A, B ou C, pour les logements collectifs et individuels neufs, dans les conditions d’application prévues par la loi de finances pour 2025 et selon les modalités définies par le décret n°2025-299 du 29/03/2025. Sous réser
Autres logements T3 du programme "CEPIA"
| Disponibilité | Prix | No | Genre | Pièces | Surface | Étage | Disponibilité | Prix | ||
|---|---|---|---|---|---|---|---|---|---|---|
| Voir | Disponible | 269 500€ | A102 | Appt. | T3 | 64.81m2 | 1er | Disponible | 269 500€ | Voir |
| Voir | Disponible | 245 000€ | A103 | Appt. | T3 | 59.88m2 | 1er | Disponible | 245 000€ | Voir |
| Voir | Disponible | 274 500€ | A202 | Appt. | T3 | 64.81m2 | 2ème | Disponible | 274 500€ | Voir |
| Voir | Disponible | 251 500€ | A203 | Appt. | T3 | 59.88m2 | 2ème | Disponible | 251 500€ | Voir |
| Voir | Disponible | 257 500€ | A205 | Appt. | T3 | 61.92m2 | 2ème | Disponible | 257 500€ | Voir |
| Voir | Disponible | 280 000€ | A302 | Appt. | T3 | 64.81m2 | 3ème | Disponible | 280 000€ | Voir |
| Voir | Disponible | 256 500€ | A303 | Appt. | T3 | 59.88m2 | 3ème | Disponible | 256 500€ | Voir |
| Voir | Disponible | 353 500€ | A401 | Appt. | T3 | 71.92m2 | 4ème | Disponible | 353 500€ | Voir |
| Voir | Disponible | 269 500€ | B004 | Appt. | T3 | 69m2 | 0-RDC | Disponible | 269 500€ | Voir |
| Voir | Disponible | 314 500€ | B101 | Appt. | T3 | 74.78m2 | 1er | Disponible | 314 500€ | Voir |
| Voir | Disponible | 271 500€ | B102 | Appt. | T3 | 66.41m2 | 1er | Disponible | 271 500€ | Voir |
| Voir | Disponible | 252 500€ | B106 | Appt. | T3 | 61.75m2 | 1er | Disponible | 252 500€ | Voir |
| Voir | Disponible | 320 500€ | B201 | Appt. | T3 | 74.78m2 | 2ème | Disponible | 320 500€ | Voir |
| Voir | Disponible | 276 500€ | B202 | Appt. | T3 | 66.41m2 | 2ème | Disponible | 276 500€ | Voir |
| Voir | Disponible | 257 500€ | B206 | Appt. | T3 | 61.75m2 | 2ème | Disponible | 257 500€ | Voir |
| Voir | Disponible | 324 500€ | B301 | Appt. | T3 | 74.78m2 | 3ème | Disponible | 324 500€ | Voir |
| Voir | Disponible | 287 500€ | B302 | Appt. | T3 | 66.3m2 | 3ème | Disponible | 287 500€ | Voir |
| Voir | Disponible | 268 500€ | B306 | Appt. | T3 | 61.75m2 | 3ème | Disponible | 268 500€ | Voir |
| Voir | Optionné | 356 500€ | B402 | Appt. | T3 | 71.92m2 | 4ème | Optionné Mais pas encore vendu 😉 | 356 500€ | Voir |