Ce lot n’est plus disponible chez VIANOVA ou est vendu.

Vous pouvez revenir dans 24h pour vérifier le stock à jour ou contacter un conseiller Vianova pour vérifier le stock en direct.
Vous pouvez également continuer votre recherche sur notre site « ici ».

Prix
308 300€  (TVA 20%)
271 047€  (TVA 5.5%)
Type
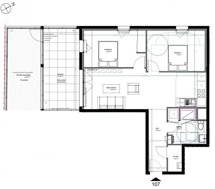
Appt. au 1er
Pièces
T3
Surface
63.76 m²
Exposition
Sud
Ville
Rennes (35000)
Livraison
2ème trimestre 2028
Informations
01 81 80 39 10

Présentation du programme "Programme neuf Rennes (35000)"

OFFRE SPECIALE PRIMO-ACCEDANT à RENNES : achetez votre appartement neuf 2P. à 180000euros avec balcon et parking, 700m du métro ! Investissez dans l’immobilier neuf avec le dispositif LLI et profitez de nombreux avantages ! Rennes, capitale de la Bretagne, est une ville animée et dynamique qui offre un mélange parfait entre histoire, culture et modernité. Son centre-ville regorge de charmantes rues pavées, de maisons à colombages et de bâtiments historiques. Vous pourrez découvrir des sites emblématiques tels que la place du Parlement de Bretagne avec son palais du XVIIe siècle et la majestueuse cathédrale Saint-Pierre. Rennes est également un important centre économique et éducatif. La ville abrite plusieurs entreprises de haute technologie, des centres de recherche et des établissements d'enseignement supérieur renommés !Situé au nord de la ville, le quartier résidentiel de Maurepas – Patton – Bellangerais, combine convivialité, verdure et diversité architecturale. Il est un quartier dynamique avec une grande variété de commerces, de restaurants et de services, facilitant le quotidien des résidents. Il est aussi réputé pour son atmosphère paisible et ses espaces verts, offrant ainsi une qualité de vie appréciée des familles. Enfin, le quartier bénéficie d’un pôle éducatif de renom, accueille des établissements scolaires et universitaires prestigieux.Nichée dans un seul petit bâtiment, la résidence est composée de 26 appartements déclinés du 2 au 4 pièces, offrant un confort de vie incomparable. Chaque logement bénéficie d’un espace de vie spacieux qui baigne de lumière naturelle, créant une atmosphère chaleureuse et accueillante. Vous pourrez profiter de moments de détente en extérieur grâce aux balcons ou terrasses qui accompagnent chaque logement, offrant ainsi un espace privé en plein air pour profiter des journées ensoleillées ou des soirées douces.La résidence dispose également de places de parkings couverts et de 4 places aériennes au rez-de-chaussée, garantissant un accès facile et pratique à votre véhicule. Un local dédié aux vélos est également prévu au rez-de-chaussée. Le quartier profite également d'une excellente connectivité grâce aux transports en commun, permettant de rejoindre facilement d'autres parties de la ville. La gare de Rennes est facilement accessible, permettant de rejoindre d'autres destinations

Autres logements T3 du programme "Programme neuf Rennes (35000)"

Disponibilité Prix Genre Pièces Surface Étage
Voir
Archivé
398 900€ Appt. T3 75.34m2 5ème
DO NOT CLICK