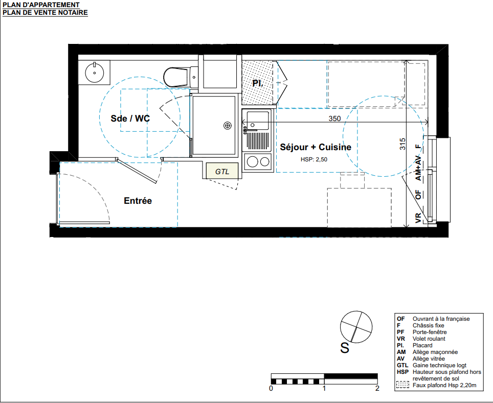
144 000€
Appt. au 2ème
Studio
20.05 m²
-
Rennes (35000)
1er trimestre 2027
01 81 80 39 10
Présentation du programme "KLEEZI | 36 ACADEMY"
[ - INVESTISSEMENT LOCATIF | TRAVAUX EN COURS - ] PACK MEUBLES OFFERT – Profitez-en dès maintenant !*
Découvrez la résidence neuve 36 ACADEMY à Rennes, une opportunité idéale pour investir dans un logement pensé pour les étudiants et jeunes actifs.
Investissez avec la solution clé en main Lamotte !
Optimisez votre patrimoine et percevez des revenus complémentaires non fiscalisés(1) grâce à notre formule complète, conçue pour simplifier toutes vos démarches.
Avec le PACK LAMOTTE, vous bénéficiez :
- d’un mobilier entièrement fourni,
- d’une gestion locative et comptable sur mesure(2),
- de l’accompagnement bancaire pour vos solutions de financement.
Un emplacement stratégique
Située à proximité des campus universitaires, du centre-ville, des transports en commun (bus et métro), la résidence offre une accessibilité optimale aux pôles d’enseignement et de culture.
Des studios fonctionnels et innovants
Pensés pour répondre aux besoins des étudiants et jeunes actifs, les logements de 36 ACADEMY allient confort, qualité et rentabilité.
Pour en savoir plus, contactez nos conseillers Lamotte à RENNES ou rendez-vous sur notre site web Vianova. fr et profitez de cette opportunité d'investissement !
(1)Sous réserve des conditions légales d’éligibilité au dispositif suivant loi de finances en vigueur. Des revenus complémentaires non fiscalisés : loyers peu ou non fiscalisés pendant la période d’amortissement du bien. (2) Gestion comptable par un cabinet offerte la première année.
* Voir conditions de l'offre sur le site Lamotte.fr
Autres logements Studio du programme "KLEEZI | 36 ACADEMY"
| Disponibilité | Prix | No | Genre | Pièces | Surface | Étage | Disponibilité | Prix | ||
|---|---|---|---|---|---|---|---|---|---|---|
| Voir | Disponible | 126 000€ | 001 | Appt. | Studio | 20.05m2 | 0-RDC | Disponible | 126 000€ | Voir |
| Voir | Disponible | 125 000€ | 002 | Appt. | Studio | 19.79m2 | 0-RDC | Disponible | 125 000€ | Voir |
| Voir | Disponible | 126 000€ | 003 | Appt. | Studio | 20.17m2 | 0-RDC | Disponible | 126 000€ | Voir |
| Voir | Disponible | 127 000€ | 004 | Appt. | Studio | 19.91m2 | 0-RDC | Disponible | 127 000€ | Voir |
| Voir | Disponible | 129 000€ | 005 | Appt. | Studio | 19.42m2 | 0-RDC | Disponible | 129 000€ | Voir |
| Voir | Disponible | 129 000€ | 006 | Appt. | Studio | 19.22m2 | 0-RDC | Disponible | 129 000€ | Voir |
| Voir | Disponible | 124 000€ | 007 | Appt. | Studio | 19.28m2 | 0-RDC | Disponible | 124 000€ | Voir |
| Voir | Disponible | 124 000€ | 008 | Appt. | Studio | 19.34m2 | 0-RDC | Disponible | 124 000€ | Voir |
| Voir | Disponible | 124 000€ | 010 | Appt. | Studio | 19.34m2 | 0-RDC | Disponible | 124 000€ | Voir |
| Voir | Disponible | 124 000€ | 011 | Appt. | Studio | 19.34m2 | 0-RDC | Disponible | 124 000€ | Voir |
| Voir | Disponible | 142 000€ | 101 | Appt. | Studio | 20.05m2 | 1er | Disponible | 142 000€ | Voir |
| Voir | Disponible | 142 000€ | 102 | Appt. | Studio | 19.79m2 | 1er | Disponible | 142 000€ | Voir |
| Voir | Disponible | 142 000€ | 103 | Appt. | Studio | 20.17m2 | 1er | Disponible | 142 000€ | Voir |
| Voir | Disponible | 143 000€ | 104 | Appt. | Studio | 19.91m2 | 1er | Disponible | 143 000€ | Voir |
| Voir | Optionné | 144 000€ | 202 | Appt. | Studio | 19.79m2 | 2ème | Optionné Mais pas encore vendu 😉 | 144 000€ | Voir |
| Voir | Disponible | 139 000€ | 203 | Appt. | Studio | 20.17m2 | 2ème | Disponible | 139 000€ | Voir |
| Voir | Disponible | 125 000€ | 215 | Appt. | Studio | 19.48m2 | 2ème | Disponible | 125 000€ | Voir |
| Voir | Disponible | 125 000€ | 216 | Appt. | Studio | 19.35m2 | 2ème | Disponible | 125 000€ | Voir |
| Voir | Disponible | 125 000€ | 217 | Appt. | Studio | 19.48m2 | 2ème | Disponible | 125 000€ | Voir |
| Voir | Disponible | 133 000€ | 301 | Appt. | Studio | 20.05m2 | 3ème | Disponible | 133 000€ | Voir |
| Voir | Disponible | 146 000€ | 310 | Appt. | Studio | 19.55m2 | 3ème | Disponible | 146 000€ | Voir |
| Voir | Disponible | 127 000€ | 312 | Appt. | Studio | 17.96m2 | 3ème | Disponible | 127 000€ | Voir |
| Voir | Disponible | 133 000€ | 313 | Appt. | Studio | 19m2 | 3ème | Disponible | 133 000€ | Voir |
| Voir | Optionné | 148 000€ | 401 | Appt. | Studio | 20.05m2 | 4ème | Optionné Mais pas encore vendu 😉 | 148 000€ | Voir |
| Voir | Optionné | 148 000€ | 402 | Appt. | Studio | 19.79m2 | 4ème | Optionné Mais pas encore vendu 😉 | 148 000€ | Voir |
| Voir | Optionné | 146 000€ | 406 | Appt. | Studio | 19.34m2 | 4ème | Optionné Mais pas encore vendu 😉 | 146 000€ | Voir |
| Voir | Disponible | 146 000€ | 408 | Appt. | Studio | 19.34m2 | 4ème | Disponible | 146 000€ | Voir |
| Voir | Disponible | 146 000€ | 409 | Appt. | Studio | 19.34m2 | 4ème | Disponible | 146 000€ | Voir |
| Voir | Disponible | 148 000€ | 410 | Appt. | Studio | 19.55m2 | 4ème | Disponible | 148 000€ | Voir |
| Voir | Disponible | 130 000€ | 412 | Appt. | Studio | 17.97m2 | 4ème | Disponible | 130 000€ | Voir |
| Voir | Disponible | 136 000€ | 413 | Appt. | Studio | 19m2 | 4ème | Disponible | 136 000€ | Voir |
| Voir | Disponible | 154 000€ | 504 | Appt. | Studio | 20.04m2 | 5ème | Disponible | 154 000€ | Voir |
| Voir | Disponible | 157 000€ | 505 | Appt. | Studio | 20.39m2 | 5ème | Disponible | 157 000€ | Voir |