Prix
497 000€
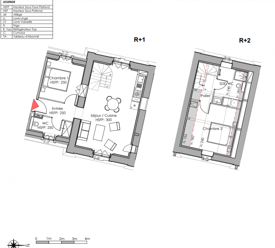
Type
Appt. au 1er
Pièces
T3
Surface
62 m²
Exposition
-
Ville
Mordelles (35310)
Livraison
2ème trimestre 2029
Informations
01 81 80 39 10

Présentation du programme " CHÂTEAU TOULOUSE-LAUTREC "

Situéé à 14km au sud-ouest de Rennes, Mordelles fait partie des communes les plus recherchées de la courronne Rennes métropole.Le Château TOULOUSE-LAUTREC, édifié en 1888 par l'architecte Ambroise Baudry et construit pour le comte Odon de Toulouse Lautrec, oncle du peintre Henri de Toulouse-Lautrec est classé Monument Historique et constitue l'un des Joyaux Patrimoniaux de Bretagne.Niché dans un écrin de verdure au coeur d'un parc à l'Anglaise également inscrit aux Monuments Historiques, le château et ses communs seront entièrement réhabilités avec une attention minutieuse portée à chaque détail patrimonial.Son parc sera retrocédé à la municipalité de Mordelles et transformé en parc public ouvert aux habitants.Un cadre d'exception à deux pas du centre ville et de ses commodités :

Commerces & services : 5min à pied
Buse vers Rennes : 5 minutes en voiture
Ecoles & Collèges: 10-12min à pied
Aéropirt de Rennes : 14 min en voiture
Rennes : 20min en voiture

Ce programme est éligible  au dispositifs  MH & DF, ci-dessous les modalités des ADF : 

3 ADF  (35/35/30)
ou 4 ADF (35/25/25/15)

Autres logements T3 du programme " CHÂTEAU TOULOUSE-LAUTREC "

Disponibilité Prix Genre Pièces Surface Étage
Voir
Disponible
528 000€ Appt. T3 65m2 0-RDC
DO NOT CLICK