434 000€
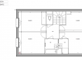
Maison au 0-RDC
T5
118.39 m²
-
Chantepie (35135)
1er trimestre 2026
01 81 80 39 10
Présentation du programme "LES CLAIRIERES BOISEES | BOCAGE CITADIN - Maisons"
//Les Clairières Boisées, le bonheur de vivre au cœur de 2 200 m² de nature//
#Une maison avec un jardin, une terrasse, un cadre de vie lumineux et verdoyant
#Bocage Citadin, le bonheur est dans la nature
Ce nouvel éco-quartier au Sud de Chantepie constitue la dernière étape d’un vaste projet environnemental. Résolument vert et ouvert aux usages partagés, il répond à toutes les attentes de bien-vivre de ses habitants.
#Rennes directement accessible
-A 15 minutes de l’hyper centre de Rennes
-Réseau Star, ligne C1 avec 2 arrêts à proximité
-Nombreuses pistes cyclables : Chantepie Rennes à vélo
-Accès immédiat rocade et métro La Poterie
-Ecoles, collèges et lycées de 10 à 20 minutes, pôles enfance et jeunesse, crèches, médiathèque
-Nombreuses activités sportives, balades à pied ou à vélo et circuits de randonnée, parcs et jardins, le Bois de Soeuvres et le Château de Cucé
-Marché le vendredi matin, supermarché, commerces de bouche, zone commerciale des Loges et Logettes et centre commercial à 6 minutes
#Prendre part à son environnement
Plus de 2 200 m² d’espaces extérieurs déclinés en clairières. Un cadre de vie au naturel s’anime au fil des saisons :
-Fruitiers, arbres aux essences multiples
-Espace enherbé ouvert pour la pratique des jeux de plein air
-Des jardins partagés favorisant la biodiversité
Au quotidien, une nature vivante et bucolique participe au bien-être des habitants.
#Les Clairières Boisées se nourrit de maisons individuelles, d’appartements terrasse ou jardin, de duplex. Un bel espace résidentiel pour accueillir toutes les familles.
Un cadre de vie serein, modelé par le paysage
Maillées à la campagne environnante, Les Clairières Boisées se compose de micro-îlots favorisant l’intimité, les vues, les accès aux espaces partagés via des cheminements doux.
Les maisons individuelles
-De 5 ou 6 pièces avec des surfaces très généreuses
-Terrasse et jardin paysager plein Sud
-Pare-vues en bois
-Loca à vélo fermé
-Carport
-Prestations de qualité
Opportunités maison avec chambre en rez-de-chaussée
#Une douceur de vivre pour tous
Les Clairières Boisées décline le bonheur d’habiter au contact d’un environnement naturel et des matériaux de grande qualité bons pour tous. Dedans et dehors, la joie de vivre ici est omniprésente.
Des prestations de grande qualité :
-Revêtement de sol en carrelage pour la pièce de vie et parquet stratifié pour les chambres
-Salle d’eau carrelage et faïence
-Volets roulants électriques
-Porte palière avec serrures
Autres logements T5 du programme "LES CLAIRIERES BOISEES | BOCAGE CITADIN - Maisons"
| Disponibilité | Prix | No | Genre | Pièces | Surface | Étage | Disponibilité | Prix | ||
|---|---|---|---|---|---|---|---|---|---|---|
| Voir | Disponible | 415 000€ | 8-M2 | Maison | T5 | 118.39m2 | 0-RDC | Disponible | 415 000€ | Voir |
| Voir | Disponible | 420 000€ | 8-M3 | Maison | T5 | 118.39m2 | 0-RDC | Disponible | 420 000€ | Voir |
| Voir | Disponible | 424 000€ | 8-M4 | Maison | T5 | 118.39m2 | 0-RDC | Disponible | 424 000€ | Voir |
| Voir | Disponible | 424 000€ | 8-M5 | Maison | T5 | 118.39m2 | 0-RDC | Disponible | 424 000€ | Voir |

