265 000€
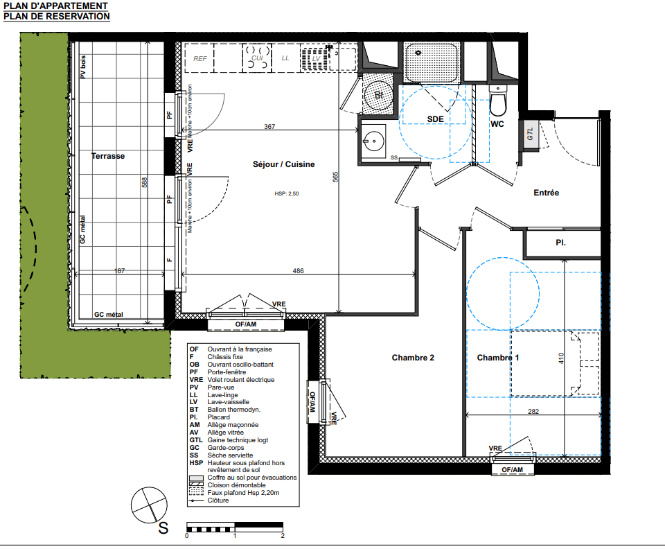
Appt. au 0-RDC
T3
60.07 m²
-
Bruz (35170)
4ème trimestre 2026
01 81 80 39 10
Présentation du programme "EKLOR"
[ LIVRAISON IMMINENTE ] – PORTES OUVERTES LE 5 ET 6 JUIN - Au sein de notre appartement décoré ! Venez rencontrer nos conseillers et échanger sur votre projet immobilier.
DERNIÈRES OPPORTUNITÉS 2 & 3 PIÈCES
C’est le moment idéal pour concrétiser votre projet immobilier à Bruz grâce au Prêt à Taux Zéro* et aux avantages du neuf, dans une résidence bientôt livrée.
À Bruz, l’une des communes les plus recherchées aux portes de Rennes, la résidence EKLOR s’inscrit dans un environnement résidentiel paisible et verdoyant, en retrait de l’animation urbaine tout en restant à proximité immédiate du centre-ville.
Vous profitez d’un cadre de vie équilibré, entre tranquillité et dynamisme : commerces, marché, établissements scolaires, équipements culturels et sportifs rythment le quotidien à quelques minutes à pied. Côté déplacements, les connexions rapides (bus, train, axes routiers) facilitent l’accès à Rennes et à son bassin d’emploi.
Les derniers appartements 2 et 3 pièces encore disponibles offrent des surfaces bien pensées, prolongées par des espaces extérieurs agréables (balcons, terrasses ou jardins privatifs), pensés pour un confort de vie durable.
Une opportunité rare pour une première acquisition ou un projet de vie aux portes de Rennes, dans un environnement paisible et connecté.
INVESTIR OU DEVENIR PROPRIETAIRE : PROFITEZ DES AVANTAGES !
Ce programme immobilier est éligible à la loi “Jeanbrun” et au Prêt à Taux Zéro (PTZ). Les conseillers Lamotte sont à votre disposition pour réaliser une étude fiscale personnalisée pour vous accompagner dans la création et l’optimisation de votre patrimoine, mais aussi pour étudier les meilleures solutions de financement qui s’offrent à vous pour votre résidence principale.
Choisir le neuf, c’est profiter de frais de notaire réduits. Un avantage supplémentaire dans le cadre d'une acquisition en résidence principale comme pour un investissement patrimonial.
*Valable pour tous les Prêts à Taux Zéro (PTZ) émis à partir du 1er avril 2025 pour l’acquisition de sa résidence principale neuve en tant que primo-accédant. Le PTZ sera accessible dans toutes les communes du territoire français, quelle que soit leur zone A, B et C, pour les logements collectifs et individuels neufs. Sous réserve de respecter les modalités définies prochainement par décret et les conditions d’application du PTZ de la loi de finances pour 2025.
Autres logements T3 du programme "EKLOR"
| Disponibilité | Prix | No | Genre | Pièces | Surface | Étage | Disponibilité | Prix | ||
|---|---|---|---|---|---|---|---|---|---|---|
| Voir | Disponible | 290 000€ | 002 | Appt. | T3 | 65.67m2 | 0-RDC | Disponible | 290 000€ | Voir |
| Voir | Disponible | 299 000€ | 102 | Appt. | T3 | 65.78m2 | 1er | Disponible | 299 000€ | Voir |
| Voir | Disponible | 277 000€ | 104 | Appt. | T3 | 60.04m2 | 1er | Disponible | 277 000€ | Voir |
| Voir | Disponible | 277 000€ | 107 | Appt. | T3 | 62.09m2 | 1er | Disponible | 277 000€ | Voir |