304 900€
Maison au 0-RDC
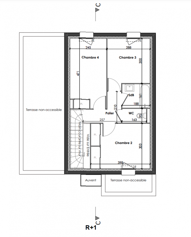
T5
98.79 m²
-
Bréal-sous-Montfort (35310)
2ème trimestre 2027
01 81 80 39 10
Présentation du programme "Les Jardins du Rocher"
EXCLUSIVITÉ - NOUVEAU A BREAL-SOUS-MONTFORT ! VOTRE MAISON PLAIN-PIED 2 OU 3 PIECES A PARTIR DE 42 M² AVEC JARDIN
OFFRE EXCEPTIONNELLE : FRAIS DE NOTAIRE OFFERTS**
Conditions exceptionnelles grâce au Nouveau Prêt à Taux 0%** 2026 pour acheter votre APPARTEMENT ou votre MAISON.
Votre maison plain-pied 2 pièces à partir de 169 000 €**
Votre maison plain-pied 3 pièces à partir de 215 000 €**
Votre appartement-jardin 2 pièces à partir de 155 200 €**
Votre appartement-jardin 3 pièces à partir de 197 300 € **
LE REVE D’UNE MAISON A PRIX ACCESSIBLE, A PORTEE DE MAIN !
Situé rue de la Maladrie, en plein cœur du bourg de Bréal-sous-Montfort, Les Jardins du Rocher propose 22 logements aux prestations soignées, s’inscrivant au cœur d’une résidence intimiste. Ce nouveau lieu de vie se compose de 10 maisons de plain-pied à partir de 42m², déclinable en 2 pièces ou 3 pièces, ainsi que de 12 appartements-balcons et appartements-jardins de 2 et 3 pièces à partir de 40m². Tous les logements disposent d’un jardin privatif engazonné ou bien d’un balcon, ainsi que d’une place de stationnement. Les maisons, quant à elles, disposent d’un garage et de deux places de stationnement extérieures, donc une réservée aux personnes à mobilité réduite. Implantée au cœur d’un espace arboré généreux, l’adresse offre un cadre naturel préservé, propice au bien-être et à la sérénité au quotidien.
Fort de son expertise de plus de 50 ans et pionnier dans la réalisation de maisons individuelles inspirées du style de vie à l’américaine, Europea
Autres logements T5 du programme "Les Jardins du Rocher"
| Disponibilité | Prix | No | Genre | Pièces | Surface | Étage | Disponibilité | Prix | ||
|---|---|---|---|---|---|---|---|---|---|---|
| Voir | Disponible | 299 900€ | M011 | Maison | T5 | 98.79m2 | 0-RDC | Disponible | 299 900€ | Voir |
| Voir | Disponible | 298 900€ | M014 | Maison | T5 | 98.79m2 | 0-RDC | Disponible | 298 900€ | Voir |
| Voir | Disponible | 299 900€ | M005 | Maison | T5 | 98.79m2 | 0-RDC | Disponible | 299 900€ | Voir |
| Voir | Disponible | 293 900€ | M006 | Maison | T5 | 98.79m2 | 0-RDC | Disponible | 293 900€ | Voir |

