297 500€
Appt. au 0-RDC
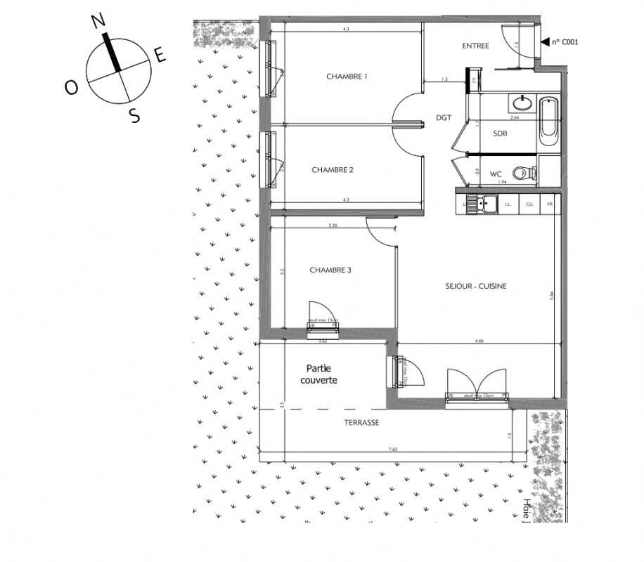
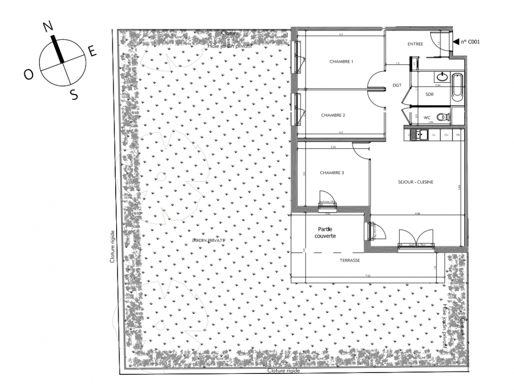
T4
76.25 m²
Sud-Ouest
Ugine (73400)
3ème trimestre 2027
01 81 80 39 10
Présentation du programme "Programme neuf Ugine (73400)"
BAISSE DE PRIX à UGINE ! Achetez votre appartement neuf 2 pièces à partir de 500 euros par mois. Et en plus, profitez de notre offre exclusive du moment !Niché au cœur du département de la Savoie, entre montagnes et nature préservée, Ugine séduit par son cadre de vie exceptionnel. Cette charmante commune à taille humaine allie parfaitement authenticité savoyarde et dynamisme moderne, offrant une qualité de vie incomparable à seulement 20 min* en voiture du splendide lac d'Annecy.Profitant d'un emplacement stratégique à proximité des commerces et services essentiels, la ville offre un accès facile à une supérette, des marchés locaux, des restaurants, des pharmacies et un bureau de poste, tous accessibles en quelques minutes à pied ou à vélo. Les familles apprécieront la présence d'établissements scolaires allant de la maternelle au lycée, situés à seulement 2 min* en voiture. Grâce à un environnement propice aux activités en plein air, les loisirs s'intègrent naturellement au quotidien avec notamment le domaine skiable de l'Espace Diamant situé à 22 min* en voiture. La ville vibre également au rythme d'événements culturels et sportifs, renforçant son atmosphère chaleureuse tout au long de l'année.Stratégiquement située, Ugine bénéficie d'une connexion rapide avec l'autoroute A430, permettant de rejoindre facilement Chambéry. La belle commune d'Annecy est à seulement 45 mn par les bords du lac. La proximité avec les grands axes routiers facilite l'accès aux communes d'Albertville (connexion TGV par Chambéry via Paris) et Faverges, accessibles en 10 et 14 min*. Les réseaux de bus départementaux offrent des liaisons régulières vers les communes environnantes, facilitant ainsi vos déplacements quotidiens.Découvrez notre nouvelle résidence située dans les hauteurs d'Ugine, composée d'appartements allant du 2 au 4 pièces. Tous les logements disposent d'un espace extérieur pour profiter de l'ensoleillement et des vues dégagées sur les montagnes environnantes. Pour assurer confort et sécurité, un parking sécurisé ainsi qu'un local à vélos sont disponibles.Contactez-vite un de nos conseillers pour concrétiser votre projet immobilier neuf à UGINE !

