275 600€
Appt. au 1er
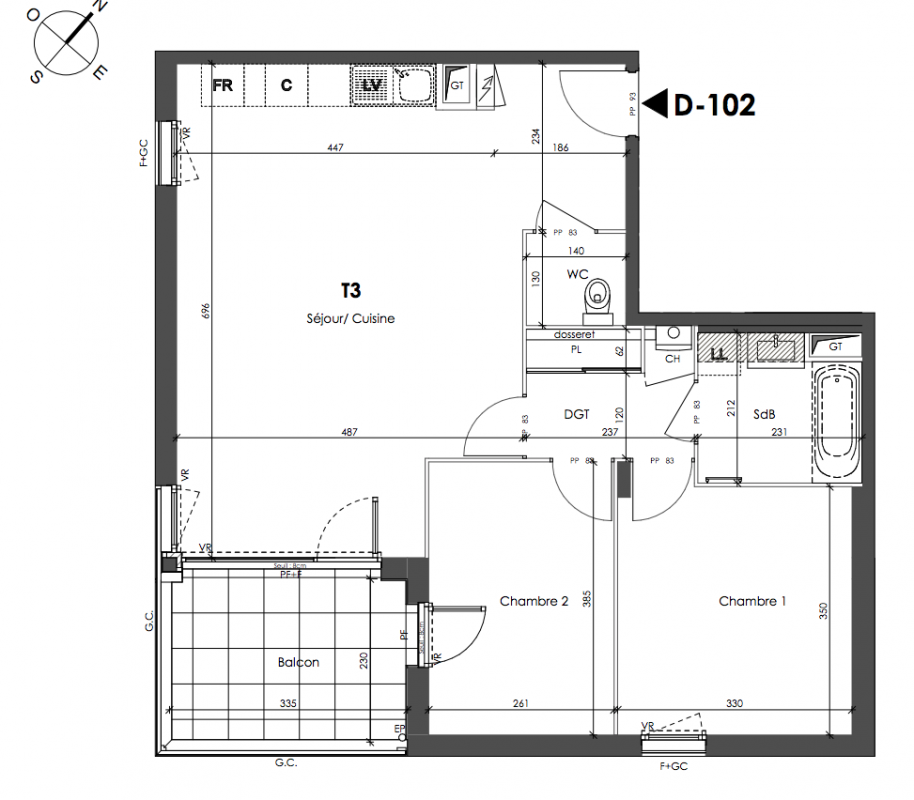
T3
67.44 m²
Sud-Est
Corbas (69960)
1er trimestre 2028
01 81 80 39 10
Présentation du programme "Programme neuf Corbas (69960)"
BAISSE DE PRIX pour l'achat de votre appartement neuf du 2 au 4 pièces avec espace extérieur à CORBAS ! Située dans la première couronne lyonnaise, Corbas est connue pour sa tranquillité tout en étant proche, des activités culturelles et économiques de Lyon. Composée d’appartements du studio au 4 pièces prolongés par des espaces extérieurs : balcon ou terrasse, notre résidence s’insère dans un paisible quartier pavillonnaire. Pour plus de sécurité, un parking en sous-sol est disponible. Notre emplacement stratégique permet une proximité immédiate avec une zone commerciale accessible en seulement 7 min* à pied, répondant à tous les besoins du quotidien. Un groupe scolaire composé d’une école primaire et d’une maternelle se situe à 3 et 5 min* à pied. La ville est également parsemée de nombreux parcs et installations sportives pour profiter des activités en plein air. Côté transport, en commun, Corbas est desservie par un réseau de bus efficace permettant de rejoindre les points stratégiques de la ville. À 6 min* à pied, l’arrêt du bus « Chemin de la Grange Blanche » (ligne 54.) permet de rejoindre la gare TER de Vénissieux en 20 min*. L’A7 et la rocade EST permettent d’accéder aux zones économiques de Lyon. Axée sur l’écologie, la commune bénéficie de pistes cyclables sécurisées permettent de se déplacer facilement et de favoriser les déplacements doux. Contactez-vite un de nos conseillers pour découvrir tous nos appartements neufs à Corbas et pour concrétiser votre projet immobilier neuf !
Autres logements T3 du programme "Programme neuf Corbas (69960)"
| Disponibilité | Prix | No | Genre | Pièces | Surface | Étage | Disponibilité | Prix | ||
|---|---|---|---|---|---|---|---|---|---|---|
| Voir | Disponible | 280 800€ | D202 | Appt. | T3 | 67.45m2 | 2ème | Disponible | 280 800€ | Voir |
| Voir | Disponible | 274 600€ | D203 | Appt. | T3 | 65.19m2 | 2ème | Disponible | 274 600€ | Voir |
| Voir | Disponible | 268 400€ | E102 | Appt. | T3 | 66.65m2 | 1er | Disponible | 268 400€ | Voir |
| Voir | Disponible | 291 200€ | E305 | Appt. | T3 | 69.29m2 | 3ème | Disponible | 291 200€ | Voir |
| Voir | Disponible | 273 600€ | E202 | Appt. | T3 | 66.65m2 | 2ème | Disponible | 273 600€ | Voir |
| Voir | Disponible | 270 400€ | A203 | Appt. | T3 | 63.82m2 | 2ème | Disponible | 270 400€ | Voir |
| Voir | Disponible | 274 600€ | A303 | Appt. | T3 | 63.82m2 | 3ème | Disponible | 274 600€ | Voir |
| Voir | Disponible | 285 000€ | B003 | Appt. | T3 | 63.53m2 | 0-RDC | Disponible | 285 000€ | Voir |
| Voir | Disponible | 270 400€ | B104 | Appt. | T3 | 63.57m2 | 1er | Disponible | 270 400€ | Voir |
| Voir | Disponible | 280 800€ | C003 | Appt. | T3 | 61.37m2 | 0-RDC | Disponible | 280 800€ | Voir |
| Voir | Optionné | 237 200€ | C102 | Appt. | T3 | 61.37m2 Le bon plan | 1er | Optionné Mais pas encore vendu 😉 | 237 200€ | Voir |
| Voir | Disponible | 265 200€ | C104 | Appt. | T3 | 62.61m2 | 1er | Disponible | 265 200€ | Voir |
| Voir | Disponible | 266 300€ | F105 | Appt. | T3 | 66.94m2 | 1er | Disponible | 266 300€ | Voir |
| Voir | Disponible | 264 200€ | F202 | Appt. | T3 | 62.23m2 | 2ème | Disponible | 264 200€ | Voir |
| Voir | Disponible | 271 500€ | F204 | Appt. | T3 | 66.94m2 | 2ème | Disponible | 271 500€ | Voir |
| Voir | Disponible | 269 400€ | F302 | Appt. | T3 | 62.23m2 | 3ème | Disponible | 269 400€ | Voir |
| Voir | Disponible | 276 700€ | F304 | Appt. | T3 | 66.94m2 | 3ème | Disponible | 276 700€ | Voir |