323 000€
Appt. au 2ème
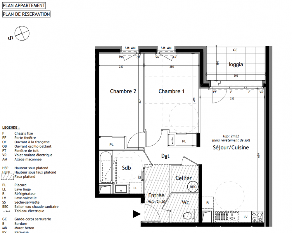
T3
62.52 m²
-
Contamines-Montjoie (74170)
4ème trimestre 2026
01 81 80 39 10
Présentation du programme "BELLE SOURCE"
[ - DERNIÈRES OPPORTUNITÉS – VISITEZ NOTRE APPARTEMENT DÉCORÉ SUR RENDEZ-VOUS - ] // SAINT-GERVAIS-LES-BAINS – Offrez-vous un appartement neuf en Haute-Savoie et profitez des panoramas exceptionnels du pays du Mont-Blanc.
Notre résidence BELLE SOURCE propose des appartements 3 pièces avec loggia, dont certains en duplex. Elle est idéalement située dans le quartier du Fayet.
Pour mieux vous projeter, venez découvrir notre appartement décoré sur rendez-vous et appréciez tout le potentiel de cette résidence à l’esprit alpin et contemporain.
Profitez d’un accès direct au centre de Saint-Gervais à pied ou à vélo, ainsi que d’un cadre de vie unique, entre nature et dynamisme.
Chaque appartement est pensé pour votre bien-être et propose des espaces fonctionnels et ouverts, avec de belles performances énergétiques (RE2020). Grâce à de larges ouvertures, la lumière naturelle entre généreusement et met en valeur l’environnement montagnard.
BELLE SOURCE allie charme alpin et prestations modernes. Pour votre confort, la résidence dispose de casiers à ski et d’un local à vélos, afin de conjuguer praticité et bien-être au quotidien.
INVESTIR OU DEVENIR PROPRIETAIRE : PROFITEZ DES AVANTAGES !
Ce programme immobilier est éligible à la loi “Jeanbrun” et au Prêt à Taux Zéro (PTZ). Les conseillers Lamotte sont à votre disposition pour réaliser une étude fiscale personnalisée pour vous accompagner dans la création et l’optimisation de votre patrimoine, mais aussi pour étudier les meilleures solutions de financement qui s’offrent à vous pour votre résidence principale.
Choisir le neuf, c’est profiter de frais de notaire réduits. Un avantage supplémentaire dans le cadre d'une acquisition en résidence principale comme pour un investissement patrimonial.
Contactez nos équipes commerciales à AIX-LES-BAINS, ou rendez-vous sur LAMOTTE.FR. Ne manquez pas cette opportunité d’acquérir votre résidence à la montagne !
Autres logements T3 du programme "BELLE SOURCE"
| Disponibilité | Prix | No | Genre | Pièces | Surface | Étage | Disponibilité | Prix | ||
|---|---|---|---|---|---|---|---|---|---|---|
| Voir | Disponible | 319 000€ | A106 | Appt. | T3 | 62.52m2 | 1er | Disponible | 319 000€ | Voir |
| Voir | Optionné | 319 000€ | B101 | Appt. | T3 | 61.13m2 | 1er | Optionné Mais pas encore vendu 😉 | 319 000€ | Voir |
| Voir | Disponible | 364 000€ | B202 | Appt. | T3 | 62.28m2 | 2ème | Disponible | 364 000€ | Voir |