Prix
490 000€
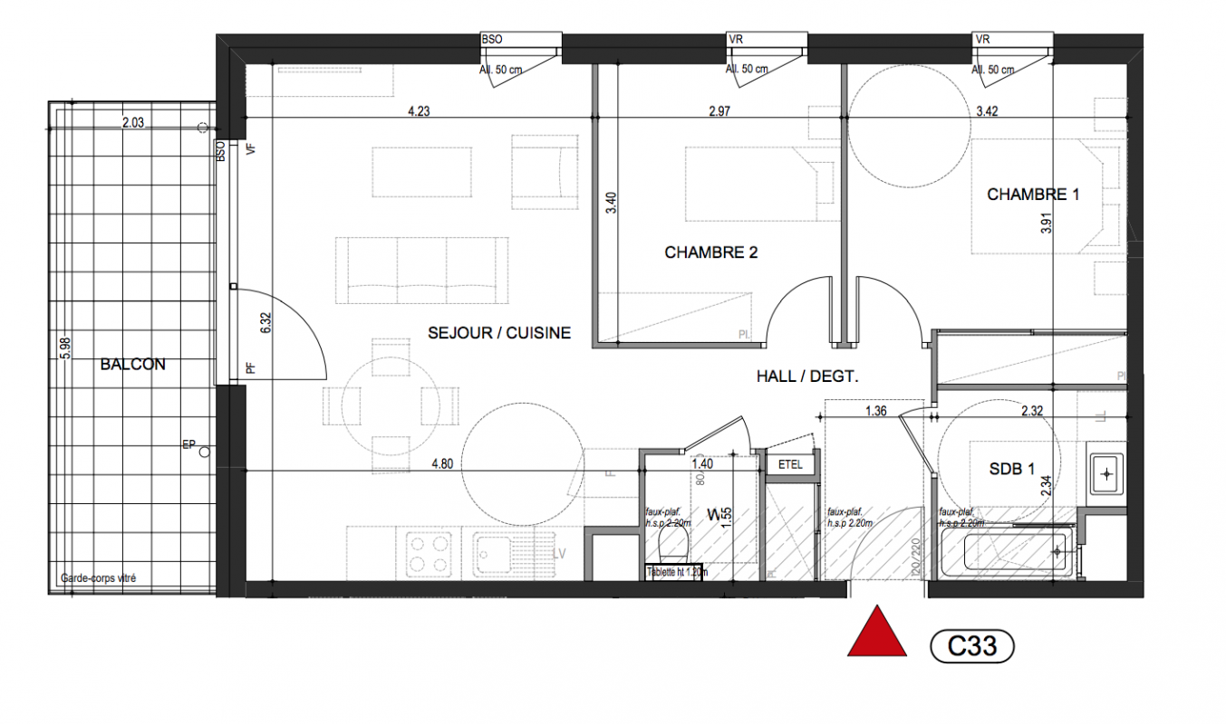
Type
Appt. au 0-RDC
Pièces
T3
Surface
64.28 m²
Exposition
-
Ville
Annecy (74000)
Livraison
4ème trimestre 2027
Informations
01 81 80 39 10

Présentation du programme "L'EVEIL - OSTARA P2"

L'architecture d’OSTARA offre une lecture contemporaine des nuances minérales qui émaillent le cœur historique d’Annecy.Les matériaux soigneusement sélectionnés tels que le béton lasuré, le bois naturel ou l’acier se mêlent en une vibrante symphonie visuelleLes façades, rythmées par des balcons filants horizontaux et des brises-vues verticaux jouent avec la transparence et l’opacitéComposée de deux volumes de 6 étages, OSTARA abrite des appartements neufs du 3 au 4 pièces, tous prolongés de grands balcons, terrasses ou jardins privatifsRésidence certifiée NF HABITAT HQE L'alliance parfaite entre qualité de vie et respect de l'environnement.Les appartements neufs sont conçus pour allier espace et luminosité.Les pièces de vie, dotées de grandes baies vitrées, se prolongent par de grands balcons et terrasses.L'exigence énergétique est au cœur de la conception, avec une consommation optimisée grâce à une isolation renforcée, des menuiseries à double vitrage et une production d'énergie vertueuse.Un parc paysager en cœur d'îlot crée un refuge de nature en pleine ville.Les prestations de qualité incluent : carrelage de grande dimension 60x60, parquet chêne contrecollé, baies et fenêtres en bois, brise-soleil orientables électriques, etc. 

Autres logements T3 du programme "L'EVEIL - OSTARA P2"

Disponibilité Prix Genre Pièces Surface Étage
Voir
Disponible
480 000€ Appt. T3 64.28m2 0-RDC
DO NOT CLICK