Ce lot n’est plus disponible chez VIANOVA ou est vendu.

Vous pouvez revenir dans 24h pour vérifier le stock à jour ou contacter un conseiller Vianova pour vérifier le stock en direct.
Vous pouvez également continuer votre recherche sur notre site « ici ».

Prix
175 200€
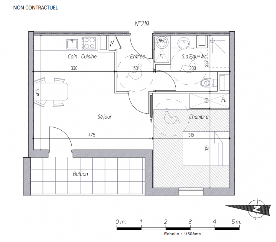
Type
Appt. au 2ème
Pièces
T2
Surface
41.34 m²
Exposition
Ouest
Ville
Bourg-en-Bresse (01000)
Livraison
1er trimestre 2025
Informations
01 81 80 39 10

Présentation du programme "Résidence Services Seniors Les Jardins D'arcadie Bourg-en-bresse"

Descriptif de la résidenceUn lieu propice à la sécurité et à la convivialité Nommée « ville verte », Bourg-en-Bresse, est une ville où il fait bon flâner. Notre Résidence Seniors « Les Jardins d’Arcadie » bénéficie d’une situation privilégiée dans le quartier historique de Bourg-en-Bresse. Une adresse idéale pour accéder à pied à tous les commerces et services de proximité : marché du théâtre, restaurants, boutiques diverses et variées et services publics. Nos résidents profitent d’un cadre privilégié grâce aux nombreux parcs, jardins et fontaines à proximité. À seulement quelques mètres des Jardins d’Arcadie se trouve le parc de la Visitation, magnifique jardin ombragé à la française. Gare à 1 km. 4 lignes de bus à 350 mDescriptif gestionnaireFiliale du Groupe ACAPACE, Les Jardins d’Arcadie est spécialiste dans l’accueil des personnes âgées autonomes et semi-autonomes sur la France entière. L’offre hébergement est conçue pour répondre aux enjeux du vieillissement, à l’autonomie des seniors et propose des services et des équipements de proximité (commerces, transports, équipements médicaux, accessibilité, espaces conviviaux). Les résidences bénéficient de la double certification qualité : ISO 9001 pour l’offre d’hébergement et Qualisap pour les services à la personne. La marque affiche un positionnement prix clair et lisible, et son offre de services s’adapte à l’évolution des besoins des résidents. La pérennité des exploitations provient des études du marché immobilier et du potentiel locatif réalisés en amont.Arguments de venteBourg-en-Bresse, 40 000 habitants, préfecture du département de l'Ain, dans la région Rhône-Alpes Entre Lyon et Genève, la cité bressane bénéficie d'un cadre particulièrement privilégié (nature, patrimoine historique, activités culturelles, capitale de la gastronomie...). Programme à proximité immédiate du centre-ville, situation idéale pour accéder à tous les commerces et services (marché du théâtre, restaurants, boutiques, mairie...). A quelques mètres du parc de la Visitation, magnifique jardin à la française aux arbres bicentenaires. Un marché porteur : une résidence services spécialement adaptée aux besoins des seniors. Des espaces collectifs de bon standing et une offre de services proposée à la carte (Spa, salle de gym, animation...). Des appartements fonctionnels aménagés pour le plus grand confort des résidentsInformations du bail commercialArticle 6.2 du bail commercial - Entretien - Réparations : Le PRENEUR dev...

Autres logements T2 du programme "Résidence Services Seniors Les Jardins D'arcadie Bourg-en-bresse"

Pas de logements disponibles
DO NOT CLICK